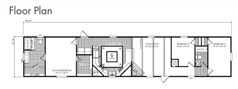
Overview Property ID: HZHZ33 Singlewide Champion Property Type 3 Bedrooms 2Bathrooms 1127Sq Ft 14 x 76Home Size Property Details Description Description Champion Legend 1676268 Mobile Home – Singlewide – 3BR/2BA – 14×76 – 1127 sqft 1127 Square Feet 3 Bedrooms 2 Bathrooms Single-Section Related products Champion Homes RH1351A Reversed – Singlewide – 1BR/1BA – 13×35 – 467 sqft Beds: 1Baths: 1467 Sq Ft Details 2023 Champion Legend 1456073 Mobile Home – Singlewide – 2BR/2BA – 780 sqft Beds: 2Baths: 2780 Sq Ft Details Jojobet GirişcasibomJojobet GirişcasibomcasibomcasibomjojobetjojobetMadridbetMadridbetcasibom girişmatbet girişganobetpokerklasjojobetCasibomJojobetGrandPashaBet destekDeneme bonusu veren siteler 2026jojobet girişCasibom GirişJojobet GirişJojobet Giriş Jojobet GirişCasibom GirişCasibom GirişCasibom GirişjojobetCasibomMarsbahisJojobetJojobet